louer

310 Boul. St-Joseph

28 $ / année / pied carré

Condo commercial - Hull (Gatineau)

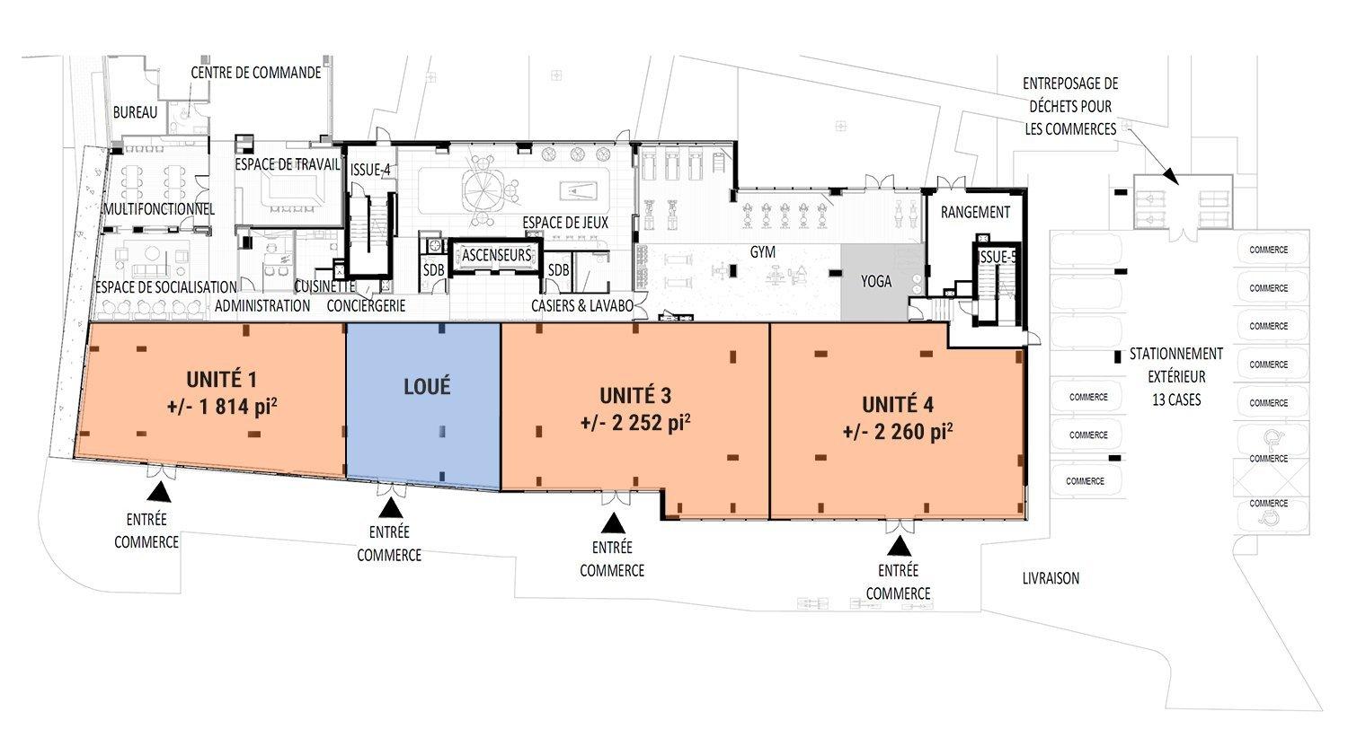
Espace commerciaux unité de coin au rez-de-chaussée disponibles à la location dans le nouvel édifice "Bloome", qui compte 380 unités résidentielles. Situé à l'intersection du boulevard Saint-Joseph et du boulevard Montclair, cet emplacement bénéficie d'une bonne visibilité et d'un fort passage piéton. Vous serez à proximité de la Galerie de Hull, ainsi que de supermarchés, de pharmacies et d'une large sélection de restaurants, offrant ainsi un cadre dynamique pour votre entreprise. Se trouve à seulement 10 minutes du pont Portage qui mène à Ottawa. Un cadre parfait pour développer votre activité !

Autoroute/Voie rapide, Transport en commun
Taxes municipales125 279 $
Taxes scolaires309 $
Délai d'occupation prévu15 jours
Superficie du terrain11814 PC
Dimension de la façade du terrain87.36 M
Dimension de la profondeur du terrain98.14 M
Année de construction2024
Évaluation municipale (terrain)8 145 000 $
Évaluation municipale (bâtiment)1 $
Évaluation municipale (total)8 145 001 $
Année d'évaluation2024
Type of ownershipDivise
*** 304 Bd Saint-Joseph, Local 1, Gatineau, QC J8Y 3Y3 ***
Espaces commerciaux au rez-de-chaussée disponibles à la location dans le nouvel édifice "Bloome", qui compte 380 unités résidentielles.
Emplacement stratégique : Situé sur un boulevard fréquenté, ce local bénéficie d'une bonne visibilité et d'un accès facile, attirant ainsi plus de clients.
Proximité des services : Le secteur offre des commodités telles que des restaurants, des magasins et des services, ce qui est avantageux pour attirer les clients et les employés.
Zone commerciale dynamique : Être dans une zone en développement favorise la croissance de votre entreprise, avec un potentiel d'augmentation de la clientèle.
Facilité d'accès : Un bon accès aux transports en commun et aux routes principales facilite l'arrivée des clients et des employés.
Possibilités de collaboration : Être à proximité d'autres entreprises peut offrir des opportunités de partenariat ou de collaboration.
Image de marque : Un local bien situé contribue à renforcer l'image de marque de votre entreprise et à créer une impression positive sur les clients.
Options d'aménagement : Selon le type de local, il peut y avoir des possibilités d'aménagement pour répondre spécifiquement à vos besoins commerciaux.
Cet emplacement est à seulement 10 minutes du pont Portage qui mène à Ottawa. Un cadre parfait pour développer votre activité !

Cette propriété vous intéresse?

Stéphane Bisson
Stéphane Bisson
MBA, FRI, Courtier immobilier agréé DA
Katia Khoury
Katia Khoury
Courtier immobilier agréé DA
Pour découvrir toutes les informations sur la location de la propriété située au 310 Boul. St-Joseph, à Hull (Gatineau), complétez le formulaire ci-joint dès aujourd’hui.

Ces propriétés pourraient vous intéresser aussi!

Équipe Stéphane Bisson, certifiés KW Luxury au Québec est un groupe exclusif, élite et sophistiqué de conseillers immobiliers qui excellent au service des clients du marché des propriétés haut de gamme.

304 Boul. St-Joseph
Hull (Gatineau) / pied carré

304 Boul. St-Joseph

306 Boul. St-Joseph
Hull (Gatineau) / pied carré

306 Boul. St-Joseph

885 Boul. de la Carrière 201
Hull (Gatineau) / pied carré

885 Boul. de la Carrière 201

304 Boul. St-Joseph
Hull (Gatineau) / pied carré

304 Boul. St-Joseph

306 Boul. St-Joseph
Hull (Gatineau) / pied carré

306 Boul. St-Joseph

885 Boul. de la Carrière 201
Hull (Gatineau) / pied carré

885 Boul. de la Carrière 201

Respect de la vie privée

En acceptant de nous partager certaines informations de navigation, vous nous aidez à nous améliorer et à vous offrir une expérience de navigation optimale. Merci de votre appui!

Activez les catégories que vous souhaitez partager, merci de votre aide!

  • Google Analytics
  • Hotjar
  • Video Youtube
  • Google Analytics
  • Facebook pixel
  • Google Ads
  • Google Ads Conversion