acheter

515 Ch. H.-Bondu

949 800 $

Maison de plain-pied - Notre-Dame-de-Pontmain

Bienvenue dans ce joyau rare, construit en 2009, érigé selon les plus hauts standards de la construction. Située sur les rives paisibles et cristallines du Lac des Ours, cette résidence offre une combinaison parfaite de luxe, modernité et d'harmonie avec la nature. Avec quatre chambres à coucher spacieuses et deux salles de bain complètes, cette propriété est idéale autant pour une résidence principale que pour une escapade familiale quatre saisons. Chaque pièce a été conçue avec soin pour maximiser le confort et la luminosité naturelle, tout en offrant une vue imprenable sur le lac. Un véritable paradis pour les amoureux de la nature.

Superficie (MC)
217.9
Pièces
16
Salle de bain
2
Chambres
4
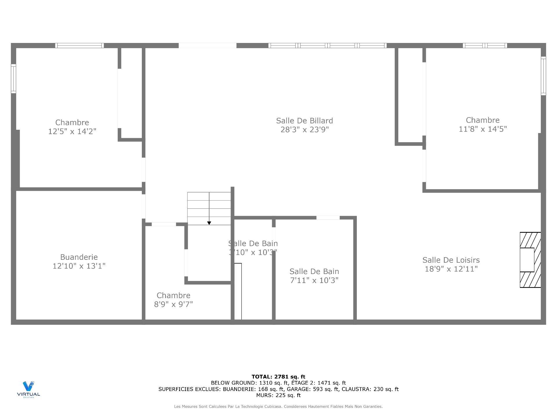
Pièces Niveau Dimensions Couvre plancher
Hall d'entrée1er niveau/RDC6.3x8.10 PCéramique
Salon1er niveau/RDC15.4x13.7 PBois
Cuisine1er niveau/RDC16.8x12.4 PCéramique
Salle à manger1er niveau/RDC12.9x12.4 PCéramique
Chambre à coucher principale1er niveau/RDC19.3x12.0 PBois
Salle de bains1er niveau/RDC10.11x11.10 PCéramique
Salle de lavage1er niveau/RDC11.10x8.6 PCéramique
Chambre à coucher1er niveau/RDC11.10x11.2 PBois
Rangement1er niveau/RDC6.5x4.10 PBois
Salle familialeSous-sol28.3x23.9 PPlancher flottant
Chambre à coucherSous-sol14.2x12.5 PPlancher flottant
Salle de bainsSous-sol10.3x7.11 PCéramique
Chambre à coucherSous-sol14.5x11.8 PPlancher flottant
SalonSous-sol18.9x12.11 PPlancher flottant
Salle mécaniqueSous-sol13.1x12.10 PBéton
Salle de pêcheSous-sol9.7x8.9 PPlancher flottant
Taxes municipales2 700 $
Taxes scolaires200 $
Chambres4
Salles de bain2
Nombre de pièces16
Nombre de chambres hors sol2
Nombre de chambres au sous-sol2
Aire habitable217.9 MC
Délai d'occupation prévu15 jours
Éléments inclus lors de la venteTous les électroménagers, tous les meubles, Luminaires, toile, table de billard, table de ping-pong, table de baby foot, aspirateur central, chauffe-eau, fournaise, système d'adoucisseur d'eau UV, génératrice, prise niveau 2 pour voitures électrique.
Éléments exclus lors de la venteSystème de caméras et système d'alarme, Téléviseur et système de son (Sous-sol), bateau, tracteur à gazon et effets personnel des vendeur.
Dimension de la façade du bâtiment17.05 M
Dimension de la profondeur du bâtiment17.2 M
Superficie du terrain5306.4 MC
Dimension de la façade du terrain50.88 M
Dimension de la profondeur du terrain87.05 M
Année de construction2009
Évaluation municipale (terrain)164 000 $
Évaluation municipale (bâtiment)491 400 $
Évaluation municipale (total)655 400 $
Année d'évaluation2026
Bâtiment irrégulierOui
Superficie du bâtiment214 MC
Terrain irrégulierOui
**Propriété d'exception au bord de l'eau**
*Le zonage permet les établissements d'hébergement, donc la location à court terme peut être autorisée. Une demande doit être présentée à la CITQ et à la municipalité.
Rez-de-chaussée :*Fenêtres aux 4 côtés, becaucoup de luminosité naturelle.*Concept à aire ouverte avec plafond cathédrale munit de poutres en bois dans le salon et la salle à manger.*Planchers de bois franc en érable et de céramique.*Cuisine avec énormément de rangement avec un ilot en un morceau et des comptoirs en granit à 2pouces d'paisseur.*Chambres des maîtres avec walk-in et armoires de rangement.*Espace laveuse/sécheuse au RDC et donnant accès au garage.*Plancher chauffant dans la salle de bain principale.*Vue panoramique sur l'eau, du salon, de la chambre des maîtres, salle à manger et du patio!*Poêle au gaz propane au centre de l'aire ouverte.*Accès directement au RDC sur le vaste patio (gazebo avec moustiquaires inclus)*Air climatisé centrale, adoucisseur d'eau au sel.*Immense Douche indépendante en verre et bain surdumensionné pour 2 personnes.Sous-sol :*Totalement aménagé avec espace de jeux et salon privé.*Grande salle familiale avec vue sur l'eau et walk-out*2 chambes aux extrémités pour recevoir vos invités.*Atelier de pêche avec armoires de rangement.
Garage :*Attaché, double largeur, isolé et chauffé
Extérieur :*Vaste patio avec une vue directe sur l'eau.*Une grange pouvant servir de remise.*Grande entrée en gravier et caméras partout.*Terrain de de presque 60 000 pieds carrés.*Connection pour BBQ sur gros réservoir de propane.

Cette propriété vous intéresse?

Stéphane Bisson
Stéphane Bisson
MBA, FRI, Courtier immobilier agréé DA
Pour découvrir toutes les informations sur la location de la propriété située au 515 Ch. H.-Bondu, à Notre-Dame-de-Pontmain, complétez le formulaire ci-joint dès aujourd’hui.

Respect de la vie privée

En acceptant de nous partager certaines informations de navigation, vous nous aidez à nous améliorer et à vous offrir une expérience de navigation optimale. Merci de votre appui!

Activez les catégories que vous souhaitez partager, merci de votre aide!

  • Google Analytics
  • Hotjar
  • Video Youtube
  • Google Analytics
  • Facebook pixel
  • Google Ads
  • Google Ads Conversion