acheter

138 Rue Wellington

898 000 $

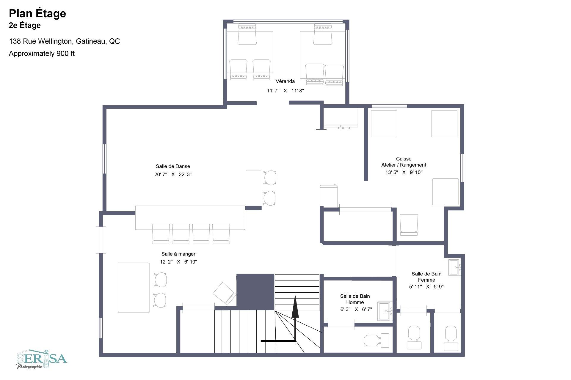
Bâtisse commerciale/Bureau - Hull (Gatineau)

Opportunité exceptionnelle d'acquérir un immeuble commercial de 3 étages idéalement situé au coeur du centre-ville de Gatineau. Emplacement stratégique bénéficiant d'une excellente visibilité et d'un fort achalandage piétonnier. Présentement exploité en tant que sandwicherie, l'immeuble offre un espace commercial aménagé au rez-de-chaussée, avec cuisine fonctionnelle et aire de service conviviale. Les étages supérieurs proposent un espace polyvalent pouvant convenir à des bureaux, à de l'entreposage ou à un redéveloppement selon vos besoin. Terrasse sur le toit, offrant un espace unique et attrayant pour la clientèle.

Transport en commun
Taxes municipales14 927 $
Taxes scolaires355 $
Délai d'occupation prévu30 jours
Éléments inclus lors de la venteTout l'équipement
Éléments exclus lors de la venteTout l'inventaire
Superficie du terrain202.4 MC
Dimension de la façade du terrain20.12 M
Dimension de la profondeur du terrain10.06 M
Année de construction1905
Évaluation municipale (terrain)161 900 $
Évaluation municipale (bâtiment)304 000 $
Évaluation municipale (total)465 900 $
Année d'évaluation2026
Number of stories3
Superficie du bâtiment356.1 MC

Cette propriété vous intéresse?

Stéphane Bisson
Stéphane Bisson
MBA, FRI, Courtier immobilier agréé DA
Katia Khoury
Katia Khoury
Courtier immobilier agréé DA
Pour découvrir toutes les informations sur la location de la propriété située au 138 Rue Wellington, à Hull (Gatineau), complétez le formulaire ci-joint dès aujourd’hui.

Respect de la vie privée

En acceptant de nous partager certaines informations de navigation, vous nous aidez à nous améliorer et à vous offrir une expérience de navigation optimale. Merci de votre appui!

Activez les catégories que vous souhaitez partager, merci de votre aide!

  • Google Analytics
  • Hotjar
  • Video Youtube
  • Google Analytics
  • Facebook pixel
  • Google Ads
  • Google Ads Conversion