acheter

170 Rue Deveault

1 600 000 $

Condo commercial - Hull (Gatineau)

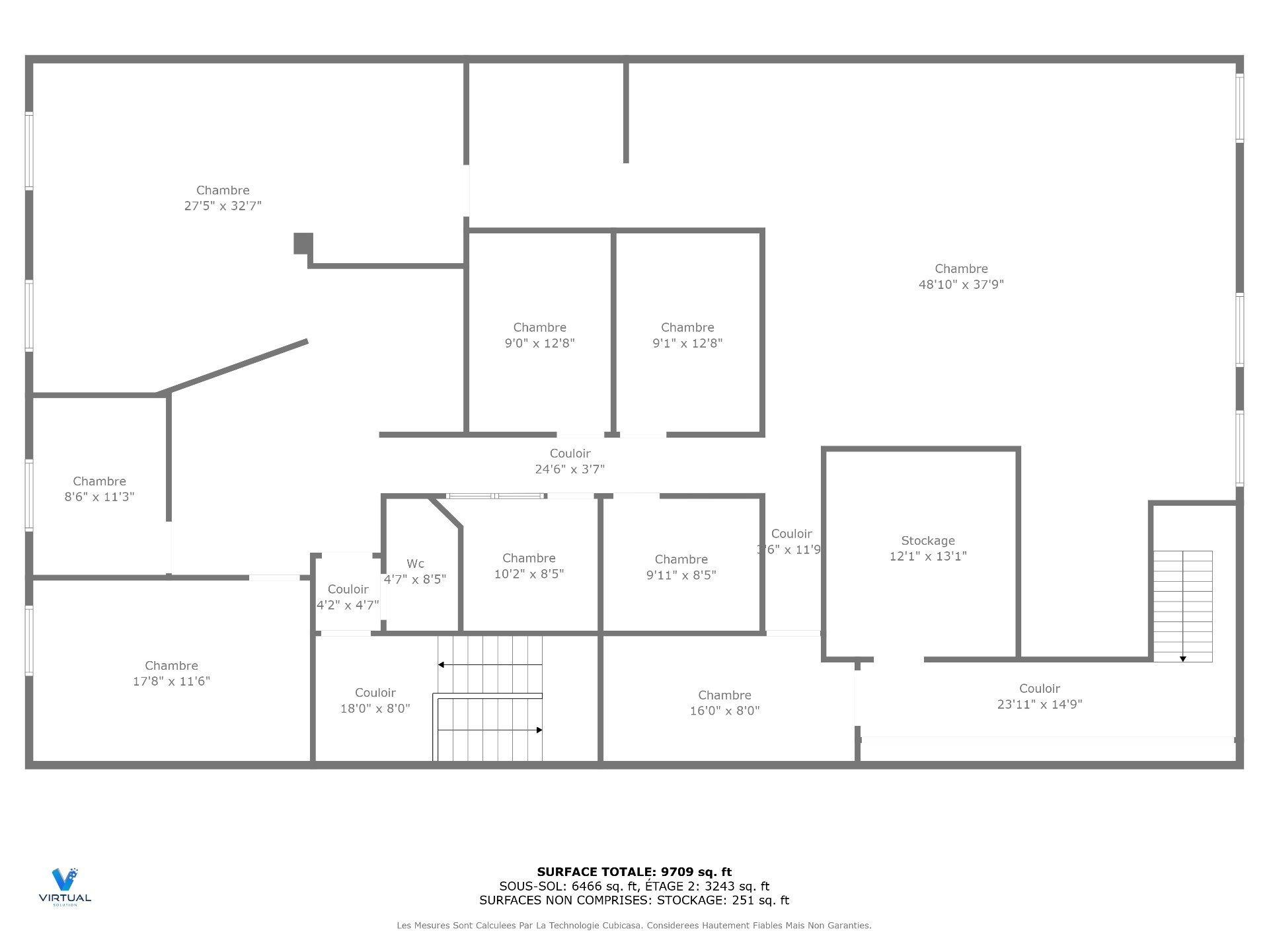
Espace d'Affaires Premium - 10 000 pi² à Louer et/ou à vendre. Disponible Maintenant! Offrez à votre entreprise un emplacement stratégique au 170 rue Deveault, Gatineau (Hull). 10 000 pi² d'espace polyvalent pour bureaux, entrepôt ou projet sur mesure Location flexible : louez en totalité ou en partie, selon vos besoins Visibilité maximale et accès rapide aux autoroutes 5 et 50, à 5 min d'Ottawa Un lieu conçu pour votre croissance. Venez voir tout ce que vous pouvez y bâtir! 2 entrée électrique de 60 amp et 400 amp (347/600V et 120/240V)

Superficie (PC)
10304
Autoroute/Voie rapide, Transport en commun
Taxes municipales41 778 $
Taxes scolaires240 $
Frais de copropriété1 200 $
Co-ownership fees1 200 $
Aire habitable10304 PC
Délai d'occupation prévu10 jours
Dimension de la façade du bâtiment19 M
Dimension de la profondeur du bâtiment12.85 M
Année de construction1972
Évaluation municipale (terrain)572 000 $
Évaluation municipale (bâtiment)1 227 700 $
Évaluation municipale (total)1 799 700 $
Année d'évaluation2024
Type of ownershipDivise
Bâtiment irrégulierOui
Emplacement stratégique : Situé dans le quartier Hull, à proximité du centre-ville de Gatineau, cet emplacement offre un accès facile aux principales routes et au centre d'Ottawa, ce qui est idéal pour attirer une clientèle diverse.
Accessibilité : L'adresse est facilement accessible en voiture et en transport en commun, avec des options de stationnement disponibles, facilitant l'accès pour les clients et les employés.
Proximité des services : Le secteur est bien desservi par des commerces, restaurants, services publics et autres commodités, ce qui crée un environnement pratique et dynamique pour les affaires.
Quartier en développement : Hull est une zone en croissance avec des projets de développement et de revitalisation, offrant des opportunités de croissance et d'expansion pour les entreprises établies dans le quartier.
Visibilité : Le 170 Rue Deveault est bien situé pour bénéficier d'une bonne visibilité et attirer l'attention des passants et des clients potentiels.
Diversité de l'offre immobilière : Selon le type d'espace disponible (commercial, bureaux, etc.), cette propriété peut offrir une flexibilité dans l'aménagement pour répondre aux besoins spécifiques des locataires.
Zoning5891Traiteurs6112Service spécialisé relié à l'activité bancaire6122Service de crédit agricole, commercial et individuel6131Maison de courtiers et de négociants en valeurs mobilières et émissions d'obligations6153Service de lotissement et de développement des biens-fonds6155Service conjoint concernant les biens-fonds, les assurances, les prêts et les lois6159Autres services reliés aux biens-fonds.6221Service photographique (incluant les services commerciaux)6222Service de finition de photographies.6235Salon de massage6312Service d'affichage à l'extérieur.6319Autres services publicitaires6331Service direct de publicité par la poste.6332Service de photocopie et de reprographie6333Service d'impression numérique.6335Service de location de boîtes postales (sauf le publipostage)6362Centre de recherche en transport, communication, télécommunication et urbanisme6367Centre de recherche en mathématique et informatique6368Centre de recherche d'activités émergentes (sont incluses les technologies langagières et la photonique).6422Service de réparation et d'entretien de radios, de téléviseurs et d'appareils électroniques6439Service de réparation d'autres véhicules légers (incluant uniquement les véhicules non motorisés).6493Service de réparation de montres, d'horloges et bijouterie.6496Service de réparation et d'entretien de matériel informatique.6497Service d'affûtage d'articles de maison.6499Autres services de réparation et d'entretien.6514Service de laboratoire médical.6515Service de laboratoire dentaire.6553Service de conception de sites Web int

Cette propriété vous intéresse?

Katia Khoury
Katia Khoury
Courtier immobilier agréé DA
Stéphane Bisson
Stéphane Bisson
MBA, FRI, Courtier immobilier agréé DA
Pour découvrir toutes les informations sur la location de la propriété située au 170 Rue Deveault, à Hull (Gatineau), complétez le formulaire ci-joint dès aujourd’hui.

Respect de la vie privée

En acceptant de nous partager certaines informations de navigation, vous nous aidez à nous améliorer et à vous offrir une expérience de navigation optimale. Merci de votre appui!

Activez les catégories que vous souhaitez partager, merci de votre aide!

  • Google Analytics
  • Hotjar
  • Video Youtube
  • Google Analytics
  • Facebook pixel
  • Google Ads
  • Google Ads Conversion